一戸建て(売買物件)
<new>自然素材住宅(相模湖・寸沢嵐)
| 物件所在地 | 相模原市緑区寸沢嵐 |
|---|---|
| 価格 | 2,980万円 |
| 交通 | 中央線「相模湖」駅バス10分「内郷診療所前」停徒歩14分 |
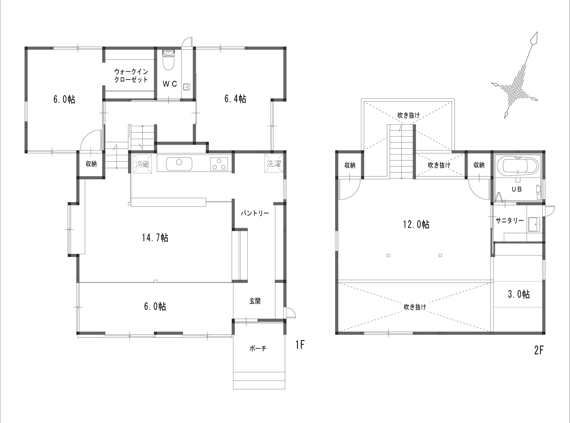
| 建物面積 | 113.16㎡ |
| 土地面積 | 444.43㎡ |
| 土地権利 | 所有権 |
| 建築構造/階数 | 木造ガルバリウム鋼板ふき2階建 |
| 築年数 | 9年 |
| 都市計画 | 相模湖津久井都市計画区域 |
| 用途地域 | 無指定地域 |
| 建蔽率/容積率 | 50%/100% |
| 設備 | 東京電力、県営水道、プロパンガス、高度処理合併浄化槽 |
| 備考 | <媒介> |
![]()
一戸建て(売買物件)
| 物件所在地 | 相模原市緑区寸沢嵐 |
|---|---|
| 価格 | 2,980万円 |
| 交通 | 中央線「相模湖」駅バス10分「内郷診療所前」停徒歩14分 |
| 建物面積 | 113.16㎡ |
| 土地面積 | 444.43㎡ |
| 土地権利 | 所有権 |
| 建築構造/階数 | 木造ガルバリウム鋼板ふき2階建 |
| 築年数 | 9年 |
| 都市計画 | 相模湖津久井都市計画区域 |
| 用途地域 | 無指定地域 |
| 建蔽率/容積率 | 50%/100% |
| 設備 | 東京電力、県営水道、プロパンガス、高度処理合併浄化槽 |
| 備考 | <媒介> |
![]()